汕市區府〔2025〕37號
各鎮人民政府、街道辦事處,區直有關單位:
《汕尾市城區捷勝漁港管理章程(試行)》已經區政府九屆一百一十二次常務會議研究通過,現印發給你們,請結合實際認真貫徹執行。執行過程中遇到的問題,請徑向區農業農村和水利局反映。
汕尾市城區人民政府
2025年11月1日
汕尾市城區捷勝漁港管理章程(試行)
第一章 總則
第一條 為維護漁港秩序,保護漁港環境,促進漁業經濟發展,加強漁港監督管理,保障漁港設施、漁業船舶、公民人身及財產安全,根據《中華人民共和國海上交通安全法》《中華人民共和國環境保護法》《中華人民共和國漁港水域交通安全管理條例》《廣東省漁港和漁業船舶管理條例》等有關法律法規,結合捷勝漁港管理實際,制定本章程。
第二條 本章程適用于在捷勝漁港(以下簡稱“本漁港”)范圍內的船舶及從事漁港運營管理、經營活動的公民、法人和其他組織。涉漁鄉鎮船舶按照《關于印發<汕尾市涉漁鄉鎮船舶管理辦法(試行)的通知》(汕農農〔2024〕256號)等規定執行。
第三條 區農業農村和水利局為本漁港的行政主管部門,其所屬的海洋綜合執法部門為本漁港的監督管理機構;捷勝鎮人民政府為本漁港的港務管理機構,負責本漁港事務管理工作,包含設施維護、經營、污染防治及安全生產管理工作。
市場監督管理部門按職責負責本漁港區域內各類市場主體登記,按照市場監管部門職責對市場主體生產經營行為依法監管,營造公平競爭環境。
發展改革部門負責牽頭協調有關部門共同對本漁港區域內的成品油經營許可及經營活動開展監督管理工作。
應急管理部門負責指導本漁港區域內的安全生產綜合監管工作,并對相關部門落實漁港區域內安全生產情況進行監督管理。
消防救援部門負責對本漁港區域的消防管理工作進行指導,協助港內消防救援工作,并對漁港陸域范圍的消防管理工作進行監督。
公安部門負責本漁港區域內社會治安管理等工作。
城市管理和綜合執法部門、鎮綜合執法部門負責本漁港陸域部分港容港貌、環境衛生的監督管理工作。
供電部門按職責負責落實好本漁港區域內的用電檢查、指導和監督管理工作,協助管理、維護港區內其他用電設備。
住房城鄉建設部門、海事管理機構配合做好本漁港區域內的非漁業船舶管理工作。
生態環境部門、自然資源部門、文化廣電旅游體育部門、財政部門等涉及本漁港管理的其他成員單位及其職能部門根據各自職責負責相應管理工作。
第二章 漁港概況
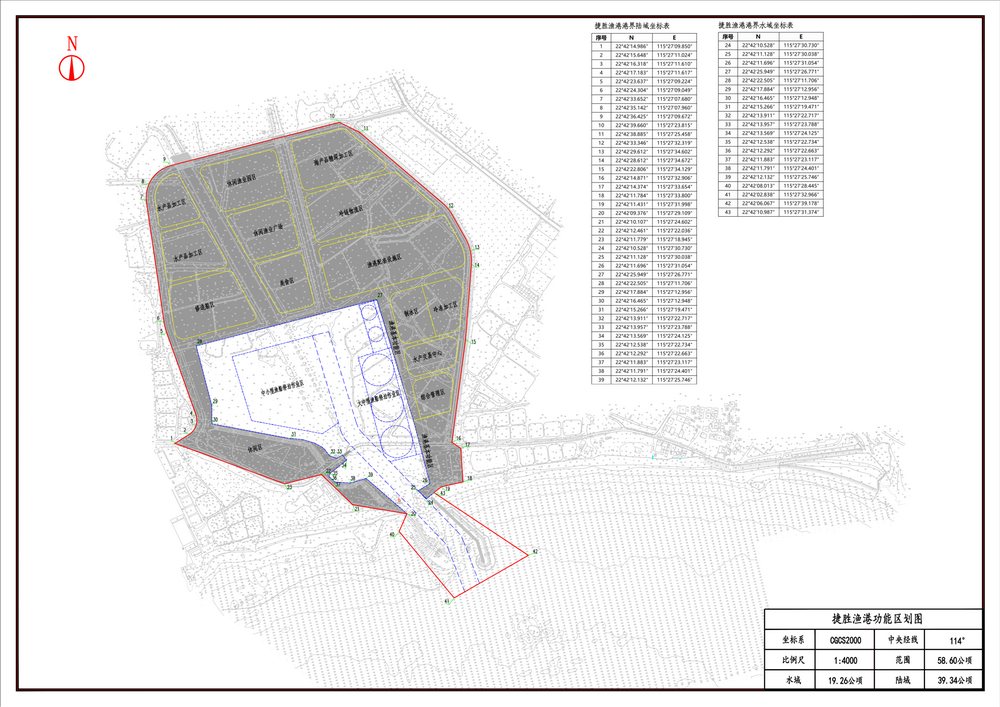
第四條 本漁港位于汕尾市城區捷勝鎮,中心地理坐標為:115°28′9″E,22°42′24″N。
第五條 本漁港總面積約58.60萬平方米,其中水域面積約19.26萬平方米(含航道、港池、停泊區、避風塘等),陸域面積約39.34萬平方米(含岸線、碼頭、裝卸作業區、水產品交易區、沿港道路及漁港配套用地等),漁港港界為以下坐標點連線范圍:
捷勝漁港港界坐標表(詳見附件1)
第六條 漁港的水域、陸域范圍一經確定不得擅自更改。
第三章 漁港經營
第七條 本漁港經營主體從事經營行為須獲得許可事項登記的,要向相關部門獲得許可證,并到市場監督管理部門辦理執照,方可從事漁港經營活動。
第八條 本漁港經營主體須依法辦理商事登記,遵守漁港管理的有關法律法規,依法經營,并服從區農業農村和水利局、漁港監督管理機構及其他職能部門的管理,負責制定安全應急處置預案并組織實施。
船舶、海上設施因防臺風、風暴潮等緊急情形需要進入漁港避險的,本漁港經營主體和漁港管理有關部門應當為其提供便利,不得拒絕。
第九條 本漁港經營主體應加強安全生產管理,保障漁港設施、碼頭、道路的正常運行,并對經營活動范圍內的安全工作負責。
第十條 本漁港經營主體應當提供公平、良好的服務,承擔漁港日常維護,并在其經營場所公布經營服務收費項目和標準,使用國家規定的經營票據。
第十一條 本漁港經營主體從事危險品作業的,應當向漁港監督管理機構提出申請,經批準后在指定的安全地點裝卸。
第十二條 本漁港經營主體使用漁港水域進行作業的,除依照國家規定履行審批手續外,應當報請漁港監督管理機構批準。
第十三條 禁止在漁港港池、錨地、航道、避風塘從事捕撈作業和養殖生產。
第十四條 本漁港經營主體應當按照核定功能使用漁港設施,配備相應的人員、設備,并保證漁港設施處于良好狀態。
第四章 漁港安全管理
第十五條 本漁港安全生產管理納入汕尾市城區安全生產管理體系。區農業農村和水利局負責牽頭協調本漁港安全生產管理工作。捷勝鎮人民政府加強本漁港安全生產管理,落實有關規章制度,加強漁業安全生產管理員隊伍建設。相關村民委員會應協助做好本漁港安全生產管理工作。
第十六條 區應急管理局、區農業農村和水利局指導捷勝鎮人民政府制定漁港防臺風預案,細化遇強臺風港內停泊的船上人員轉移上岸預案。防臺風期間,區應急管理局、區農業農村和水利局、捷勝鎮人民政府等相關單位應按防臺風預案履行職責。
第十七條 防臺風期間,本漁港經營主體應服從本漁港管理部門的指揮調度;進港避風的船舶須服從現場管理人員的指揮,在指定的泊位有序停泊;在發布防臺風相應警報后,港區內停止裝卸貨、運輸及交易活動。
第十八條 港內發生火災、沉船、碰撞等應急事件時,本漁港監督管理機構有權調度在港船舶協同救助。港內船舶應服從調度。
第十九條 本漁港的消防工作納入屬地消防責任制范圍;區應急管理局、區農業農村和水利局應指導捷勝鎮人民政府制定《漁港應急救援預案》并組織實施,組建消防管理網絡;區消防救援局應加強對漁港消防管理的指導和監管工作。
第二十條 船舶在漁港停泊期間應安排人員值班,發生突發事件時,事故現場有關人員應當及時發出呼救信號,并采取積極有效的自救、互救措施。接到報告的漁港管理部門應及時組織、協調指揮救助行動。接到相關指令的相關部門、單位和船舶應當服從統一指揮,積極配合救助行動。
第二十一條 任何單位和個人未經漁港監督管理機構批準不得在漁港范圍內進行明火作業、燃放煙花爆竹和進行電、氣、焊等危害漁港及船舶安全的相關作業。
第二十二條 對影響安全航行、航道整治以及有潛在危險的沉沒物、漂浮物,其所有人、經營人應當及時打撈清除。
第二十三條 漁港內成品油供應站(點)、船舶等供油行為,應在轄區內注冊登記取得成品油零售經營批準許可的企業并符合安全管理要求。嚴禁無證無牌加油站(點)、車、船在漁港區域從事非法加油活動。未經漁港監督管理機構批準,危險化學品運輸船舶不得進入漁港水域。
第二十四條 愛護漁港助航、消防等各種公共設施,任何單位和個人不得侵占、損壞消防、助航、導航標志等漁港設施。發現航標漂失、移位、受損或侵占、損壞漁港設施的,損壞者應恢復原狀或照價賠償。
不得在漁港區域內擅自設置有礙安全的標志,不得建造影響安全的設施。造成漁港設施損壞的,依法承擔賠償責任。
第二十五條 在漁港范圍內新建、改建、擴建各種設施或進行其他水上、水下施工作業的,應當按照國家規定辦理審批手續;影響通航的,漁港監督管理機構應當在施工前發布航行通告。
第二十六條 自覺遵守國家法律法規及相關規定,維護漁港秩序。不得從事水上娛樂等妨礙漁港安全的相關活動,嚴禁從事偷渡、走私、販毒等違法犯罪活動。
第二十七條 本漁港經營主體應加強安全生產管理,制定安全作業操作規程,保障漁港設施、碼頭、道路的正常運行,并對經營活動范圍內的安全工作負責。
第二十八條 本漁港管理有關部門應按照《中華人民共和國行政處罰法》規定完善漁港智能電子監管設施設備配置和應用,建立完善船舶進出卡口制度,加大對船舶的安全核查管理和違法行為的打擊力度。
第五章 漁港環境管理
第二十九條 遵守環境保護的相關法律法規及漁港環境保護相關規定,防止對漁港水域及其周邊環境造成污染和危害。
在漁港范圍外從事工程建設等活動可能導致港區淤積、水文變化或者危及漁港安全的,施工單位應當采取有效的防護措施。
第三十條 本漁港經營主體不得向港區內傾倒生活、生產、建筑垃圾、油類和油性混合物及其他污水等廢棄物;不得從事可能污染漁港水域、環境的作業活動,報廢的船舶不得在漁港水域范圍內停泊。
船舶垃圾應當分類后交由具備資質的垃圾處理單位處理,不得排入漁港水域。
漁船修造等可能產生污物的漁港經營主體應加強管理,設置污物圍欄等防護措施,及時清理,防止污物進入漁港水域。
第三十一條 應當遵守供電部門的管理規定,做到規范安全用電,嚴禁私拉亂接岸電。
第三十二條 應愛護漁港綠化及其他設施,嚴禁損毀漁港綠化設施,嚴禁在漁港邊亂堆亂放雜物或違法搭建。
第三十三條 漁港水域發生污染事故應立即采取措施控制和消除污染,并盡快報告,由漁港監督管理機構牽頭依法進行調查處理。
第六章 船舶進出漁港管理
第三十四條 船舶、海上設施進出漁港應當遵守漁港管理章程、避碰規則和漁業船舶進出漁港報告等規定,向漁港監督管理機構申請辦理進出港報告手續,并接受安全檢查。
第三十五條 船舶、海上設施在漁港內航行、作業、停泊,應當按順序進行,嚴禁船舶追越、爭檔搶位和在航道內錨泊。公務船在執行應急任務時有優先通行權。
第三十六條 船舶、海上設施有下列情形之一的,漁港監督管理機構有權禁止其離港,或責令其停航、停止作業。
(一)違反中華人民共和國法律、法規或者規章的。
(二)處于不適航狀態的。
(三)發生交通事故,手續未清的。
(四)未按規定配備、開啟通訊定位等終端設備,未向有關部門交付應當承擔的費用,也未提供擔保的。
第七章 交通事故處理
第三十七條 在漁港水域內的發生的交通事故,應當根據《中華人民共和國漁港水域交通安全管理條例》規定進行處理。
第三十八條 漁港水域內發生交通事故引起的民事糾紛,雙方當事人可以協商處理,協商不成的由漁港監督管理機構調解處理,或者依法向有管轄權的人民法院提起訴訟。
第八章 附則
第三十九條 對違反本漁港有關管理規定的,由各職能部門按其性質,依法予以處理。
第四十條 本章程由汕尾市城區農業農村和水利局負責解釋。
第四十一條 本章程未規定的事項,按有關法律法規執行。本章程如與國家法律法規及上級政策規定不一致時,以國家法律法規及上級政策規定為準。
第四十二條 本章程于印發之日起執行,有效期3年。
附件:
1.捷勝漁港港界圖
2.捷勝漁港功能區劃圖
附件1
捷勝漁港港界圖

附件2
捷勝漁港功能區劃圖

相關稿件:汕尾市城區捷勝漁港管理章程(試行)(注釋稿).docx
關聯稿件:關于《汕尾市城區捷勝漁港管理章程(試行)》的政策解讀
您訪問的鏈接即將離開“汕尾市城區人民政府”門戶網站,是否繼續?




您現在所在的位置 :
2025-11-13 12:06
粵公網安備 44150202000076號